ヤマモトロックマシン自治寮家族棟 in 東城

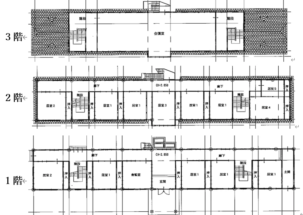
 庄原市のHPによると、東城町にあるヤマモトロックマシン自治寮家族棟は、1937年に建設され、木造三階建で屋根は半切妻、ドーマー窓を載せて洋風外観としています。内部は片廊下で、1・2階を和室の居室、3階は一室の会議室となっています。職住分離した近代産業社会の有様を示している。2016年2月25日に国登録の有形文化財に指定されました。

カテゴリ:庄原地域のもの